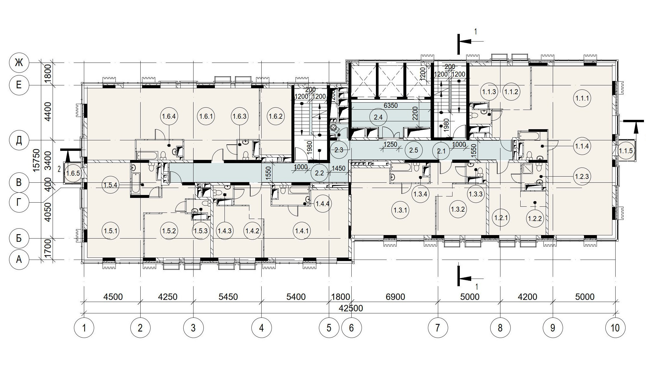
Многофункциональный жилой комплекс

г.Москва, Ореховый бульвар

Стадии: АГК, АГР, ПД, завершено строительство

2018

Проекты