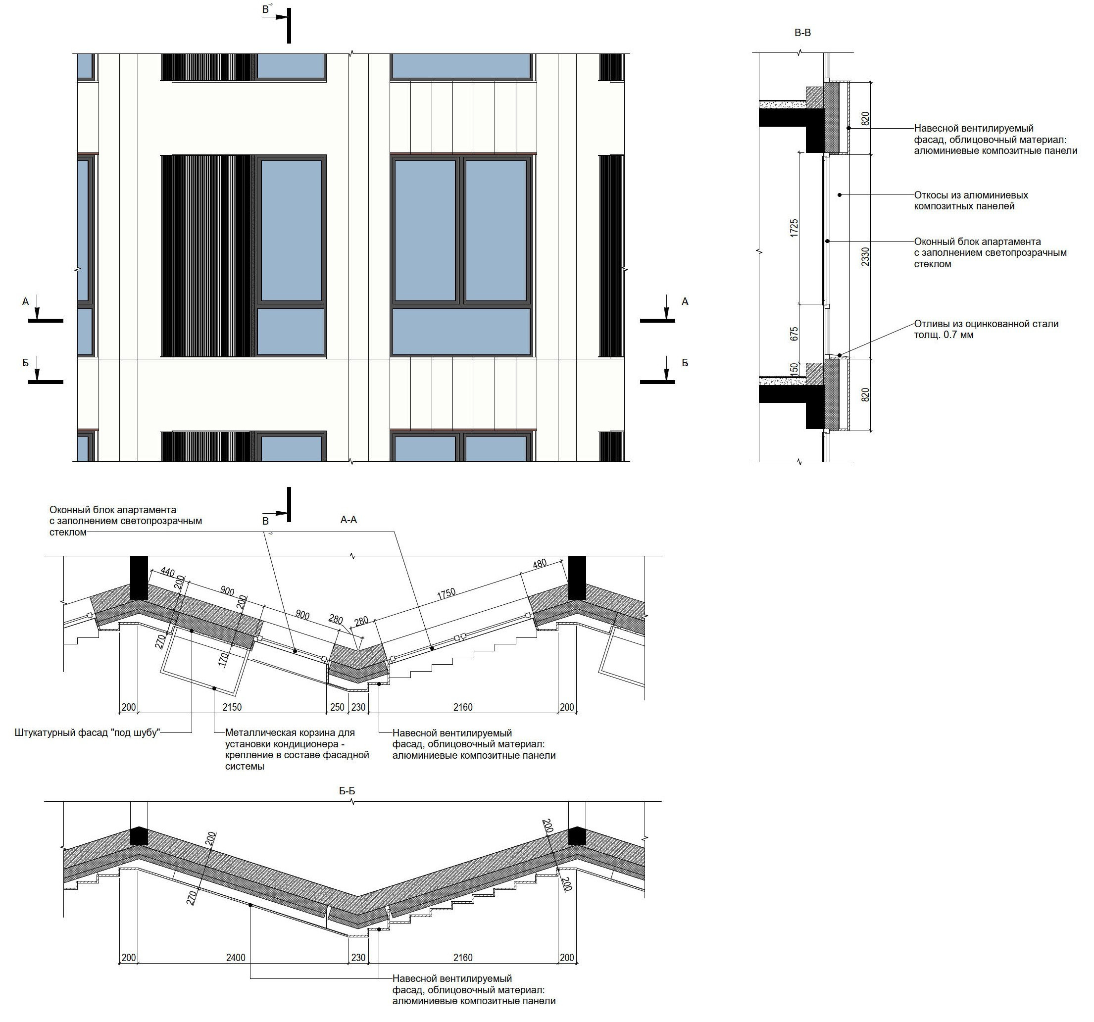
Многофункциональный комплекс с апартаментами
г.Москва, Волгоградский проспект
Стадии: АГК, АГР, ПД, РД, АН, завершено строительство
2021-2025
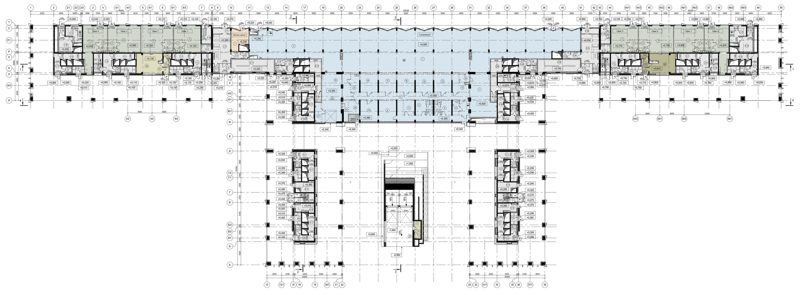
Многофункциональный комплекс с апартаментами
г.Москва, Волгоградский проспект
Стадии: АГК, АГР, ПД, РД, АН, завершено строительство
2021-2025